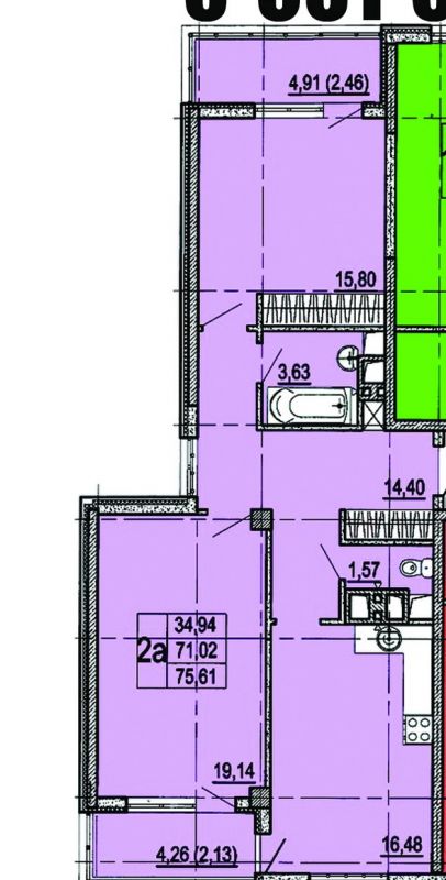
Большая 2-х комнатная квартира в ЖК Solo. Развитая социальна, продажа квартир Краснодар, N 44604336

Реклама
Квартиры Краснодар, Более месяца назад

Большая 2-х комнатная квартира в ЖК Solo. Развитая социальная инфраструктура района представлена несколькими учебными учреждениями, поликлиниками, детскими садами, почтовым отделением, парковыми зонами и аптеками. Поблизости находятся и сразу несколько крупных торговых и развлекательных центров, СБС Мегамол, ТРК Галактика, Меридиан, Гипермаркеты «Ашан» и «Окей» дорога до которых займёт не более пяти — десяти минут.
Звоните отвечу на все ваши вопросы. BuyReklama.ru

Сделка:Продам
Кол-во комнат::2-x комн.
Общая S, м2:75 /
Жилая S, м2:16 /
Кухни S, м2:34 м2
Этаж:9 /
Этажей в доме:16
Адрес:Селезнева, 2/3
Район, метро:Черемушки (ЧМР)
Цена:3600000,00