Продаю просторную однокомнатную квартиру очень редкой планир, продажа квартир Краснодар, N 75990014

Реклама
Квартиры Краснодар, Более месяца назад

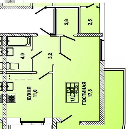
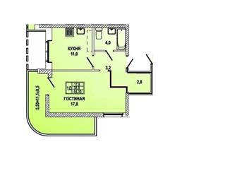
Продаю просторную однокомнатную квартиру очень редкой планировки с большим круговым балконом и видом на стадион, окна квартиры выходят на 3 стороны.
В квартире имеется гардеробная. Сделан перенос входа в гардеробную, для удобства и расширения пространства в прихожей, схема прилагается.
Квартира в собственности более 5 лет, один собственник. В квартире никто не жил, сделан качественный ремонт, использовались хорошие материалы. Заменена входная дверь, межкомнатные двери из массива. Сделана шумоизоляция потолка во всей квартире, а также шумоизоляция стояков. Качественная сантехника, установлен бойлер.
Квартира полностью меблирована, заходи и живи!
На балконе пол с подогревом, площадь балкона 12 кв.м., балкон широкий. BuyReklama.ru

Сделка:Продам
Кол-во комнат::1-комн.
Общая S, м2:45 /
Жилая S, м2:17.00 /
Кухни S, м2:11.00 м2
Этаж:2 /
Этажей в доме:17
Адрес:Восточно-Кругликовская, д. 18/1
Район, метро:40 лет Победы/Восточно-Кругликовская
Цена:3267000,00